使用載冷劑的冷庫能耗大嗎?
載冷劑冷庫采用間接制冷技術
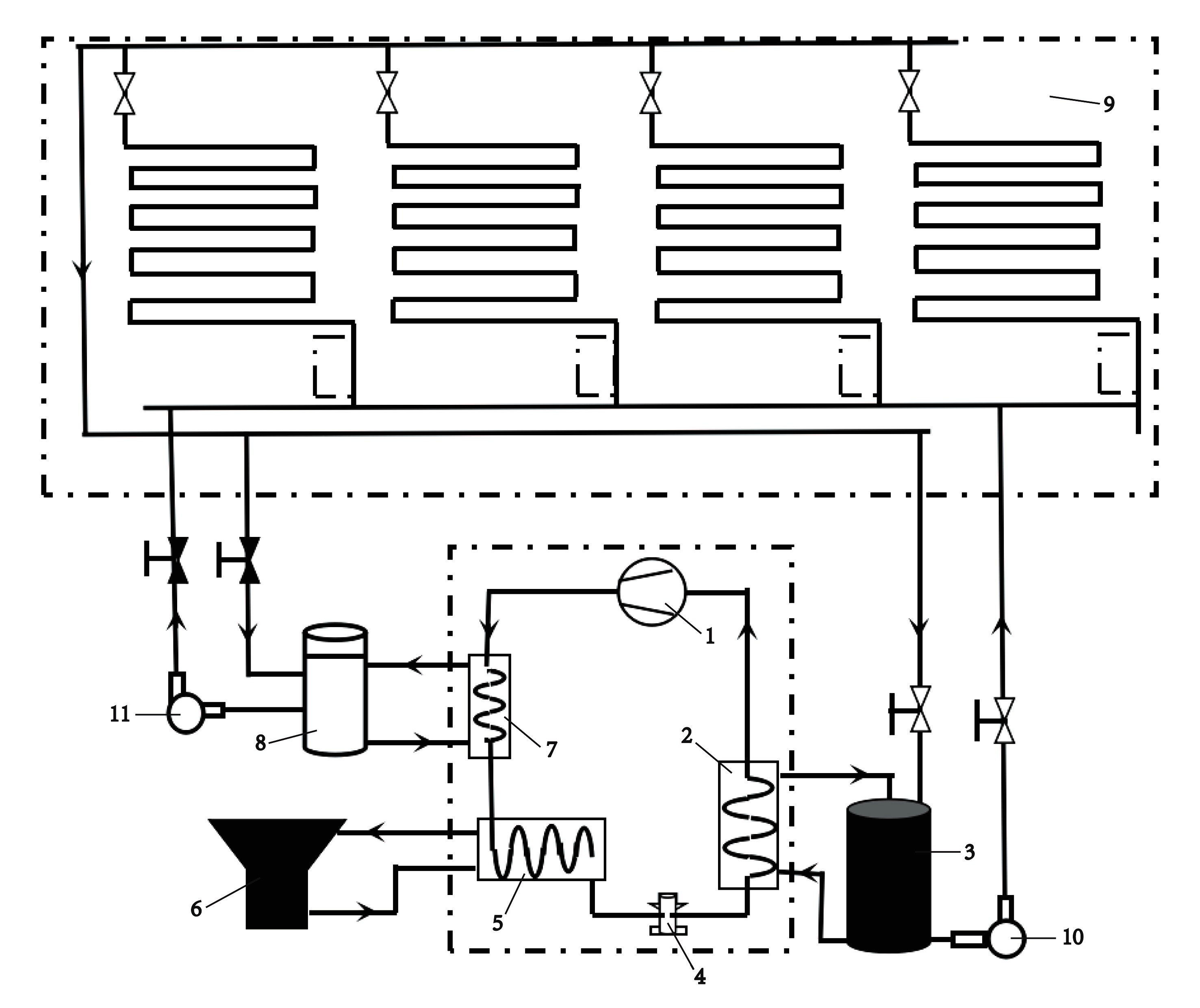
二次制冷技術,也就間接制冷技術,在制冷系統管路增加二次冷卻液儲液罐,使制冷劑可以在一個局部小的范圍內,將冷量傳遞給載冷劑,然后再通過泵在常壓下將載冷劑的冷量傳遞給冷庫實現制冷。本系統設有載冷劑儲罐與蒸發器連接,蒸發器吸收儲罐中載冷劑的熱量,將載冷劑降溫,載冷劑儲罐與冷卻泵連接,冷卻泵將載冷劑運輸到冷庫間釋放冷量,以達到制冷的目的;同時該系統在壓縮機后設有熱交換器及除霜液儲罐,壓縮機放出的熱量進行熱交換后儲存在除霜液儲罐中,當冷庫間進行除霜時,將除霜液通過泵輸送到冷庫間進行熱除霜;該系統中載冷劑與除霜液均為冰河冷媒專利產品,該系統解決了傳統直接制冷系統存在的安全性問題,暖液除霜系統利用壓縮機余熱除霜,達到節能的目的。

本系統的優點是設有載冷劑儲罐,其容量為載冷劑循環量的一倍以上,需要冷量時,載冷劑在冷庫間及操作間常壓循環,解決了傳統氨冷庫的安全性問題,也方便以后進行管路維修,同時當夜間電費低時,可以將制冷機滿負荷運行,冷量儲存在載冷劑中,白天用電量大時,可以關閉制冷機組,讓儲存的冷量進行循環,實現了電力的移峰填谷。
此優化方案中所用載冷劑為冰河冷媒科技(朝陽)有限公司專利產品冰河冷媒,其特點是用量省、載冷能力強、防銹性能突出、無毒、無閃點解決了傳統載冷劑存在的問題,使設備使用壽命至15年以上。
很多伙伴對載冷劑能耗感興趣,二次換熱勢必有能耗,但我們可以通過增加換熱面積、選用專業的載冷劑等減小能量損失接近氨直冷能效。
優化的間接制冷系統的特點
與直冷系統相比,間接制冷系統的優勢特點如下:
(1)系統簡單
采用間接冷卻制冷系統,減小了制冷系統的體積,可使制冷劑的充注量減少;通過冰河冷媒載冷劑進行間接制冷,其管道為普通的水路系統,制冷管路安裝簡單、方便快捷,管道承壓小,管材要求小且不易發生泄漏。
(2)安全性高
采用氟利昂制冷劑,不存在防爆問題;管道采用普通的水路,不易發生泄漏;采用載冷劑可使制冷系統集中,制冷劑不直接入庫,一方面庫內冷凍冷藏的食品不會受到污染,另一方面,與冷庫的工作人員密集的工作地點分開,提高了人身安全性;即使發生泄漏,代價也低得多。
(3)環境友好
間接冷卻系統中制冷劑系統集中在較小的地方,制冷劑的充注量減少,減少了HCFCs類和HFCs類制冷劑的使用,降低了對臭氧層的破壞性和溫室效應。
(4)溫度控制精度高
載冷劑的熱容量大,庫溫易于保持穩定。間接冷卻制冷系統因為溫差遠小于氟利昂或氨制冷劑直接制冷產生的溫差,不需要安裝加濕裝置就能滿足長期的保鮮。這種較高的溫度精度控制利于食品的保鮮,減少了食品的干耗,避免了不必要的損失,節省了費用。
當壓縮機停車后,受溫控的變頻載冷劑泵繼續低流量運轉,可維持冷庫較長時間的溫度要求。由于載冷劑溫度的回升呈緩升曲線,期間直冷可能量調節至低負荷補冷。
(5)運行狀態好
壓縮機不需要頻繁地啟動,設備的使用期限延長。故障率低、維修費用低、系統穩定可靠、壽命長。相比于直接冷卻系統,其回油特性更佳。
(6)運行費用低
運行費用包括制冷費用、頻繁啟動費用和除霜費用三個方面。直接冷卻系統蒸發溫度相對較高,制冷電費低,但由于其頻繁啟動且需要進行除霜,故其產品干耗量大,頻繁啟動電費高,除霜費用高,綜合運行費用高。間接制冷系統蒸發溫度相對較低,熱量損失大,制冷電費較高,但其不需要頻繁啟動,且其除霜的量和次數較小,產品干耗量小,甚至不消耗除霜電能,故其綜合運行費用低。另外間接制冷系統可靈活利用峰平谷電價移峰填谷降低運行成本。
間接冷卻制冷系統載冷劑的選擇非常重要,會影響系統安全性與綜合性能。專業載冷劑系統COP值優于乙二醇。一些非專業載冷劑對系統有腐蝕性,存在安全隱患。間接制冷系統載冷劑的選擇非常重要。本文推薦使用專業載冷劑冰河冷媒。
上一篇:載冷劑在冷庫中的使用
下一篇:低溫冷庫是用水做為載冷劑


